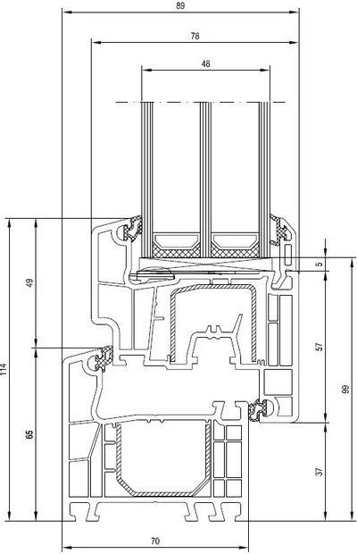
Системата Ideal 4000 mm съчетава оригиналността на формата с ефективността на решенията. Най-доброто потвърждение на това е новият вариант на крилото, който позволява използването на енергоспестяващи стъклопакети с широчина до 48 mm. По този начин, в рамките на тази най-популярна серия профили, имаме възможността да предложим отлично енергоспестяващо решение.
Aluplast Ideal 4000 – повече възможности!
Полученият при тестовете коефициент на топлопреминаване на профили със стойност до Uf=1,3 W/m2K, комбиниран с възможността за използване на по-широки и топли стъклопакети с широчина до 48 mm, гарантира отлични термични параметри на прозореца. Например, базов прозорец с размер 1230×1480 mm със стъклопакет с коефициент Ug=0,5 W/m2K, с така наречената топла рамка, постига коефициент на топлоизолация Uw=0,85 W/m2K.
Разбира се, възможността за подобряване на термичните свойства на цялата конструкция чрез разширяване на жлеба на стъклодържача е основното средство за въвеждането на новия вариант на крилото – коментира Калоян Папазов – мениджър продажби на Алупласт България. Въпреки това е важно също така да въведем това решение в рамките на вече съществуващата, все още много популярна система, като въведем само един допълнителен профил на крилото. Това е стъпка към оптимизация, повишаване на ефективността и минимизиране на нивата на складовите наличности, които биха се увеличили при въвеждане на напълно нова система. Допълнително предимство е наличието на профили Ideal 4000 с антрацитно ядро като част от серията Ideal 4000.
Оригинален дизайн
Оригиналният и хармоничен дизайн, съчетан с огромното богатство от системни решения, предоставя неограничени възможности за създаване на прозорци и подчертаване на собствения стил. Класическите, елегантни линии в тънките профили с изразителни контури, съчетани с леко футуристичната им форма, са предложение за хора, които търсят уникални възможности за проектиране на своите прозорци.
Универсалната система Ideal 4000 прекрасно се вписва както в модерната архитектура на еднофамилни и многофамилни жилища, така и при реновации. Благодарение на широчината на профилите, която е само 114 mm, повърхността на остъкляването се увеличава и по този начин в помещенията прониква повече светлина.
Мултифалц = многофункционалност
В най-новото решение на крилото е въведена технологията мултифалц, която благодарение на новата геометрия на жлеба на стъклодържача дава възможност не само за обикновено остъкляване, но и за лепене на стъклопакета. Тези технологии могат да се използват взаимозаменяемо или комбинирано, в зависимост от конкретните нужди. Например, съществува възможност за подобряване на термичните свойства на конструкцията чрез премахване на стоманената армировка или прилагане при прозорци с по-големи размери, цветове и др. Възможно е използване както на стоманена армировка, така и технологията за лепене на стъклопакети, което повишава твърдостта на конструкцията.
Перфектната елегантност на антрацита
В отговор на новите цветови тенденции, от второто тримесечие на 2019 г. предлагаме профили с антрацитно ядро и в системата Ideal 4000, което позволява по-добра адаптация на прозорците към стилния и модерен интериор.
Благодарение на антрацитното ядро, при двустранно фолирана дограма, имаме възможност да постигнем един цвят по цялото напречно сечение на профила. По този начин прозорците още по-добре се вписват в модерните интериорни и фасадни решения.
Повече информация можете да намерите на интернет страницата на Алупласт България.



